+1 (778) 215-0445 scarlettbarber@remax.net

5716 48b Avenue Delta, British Columbia V4K 3Z1

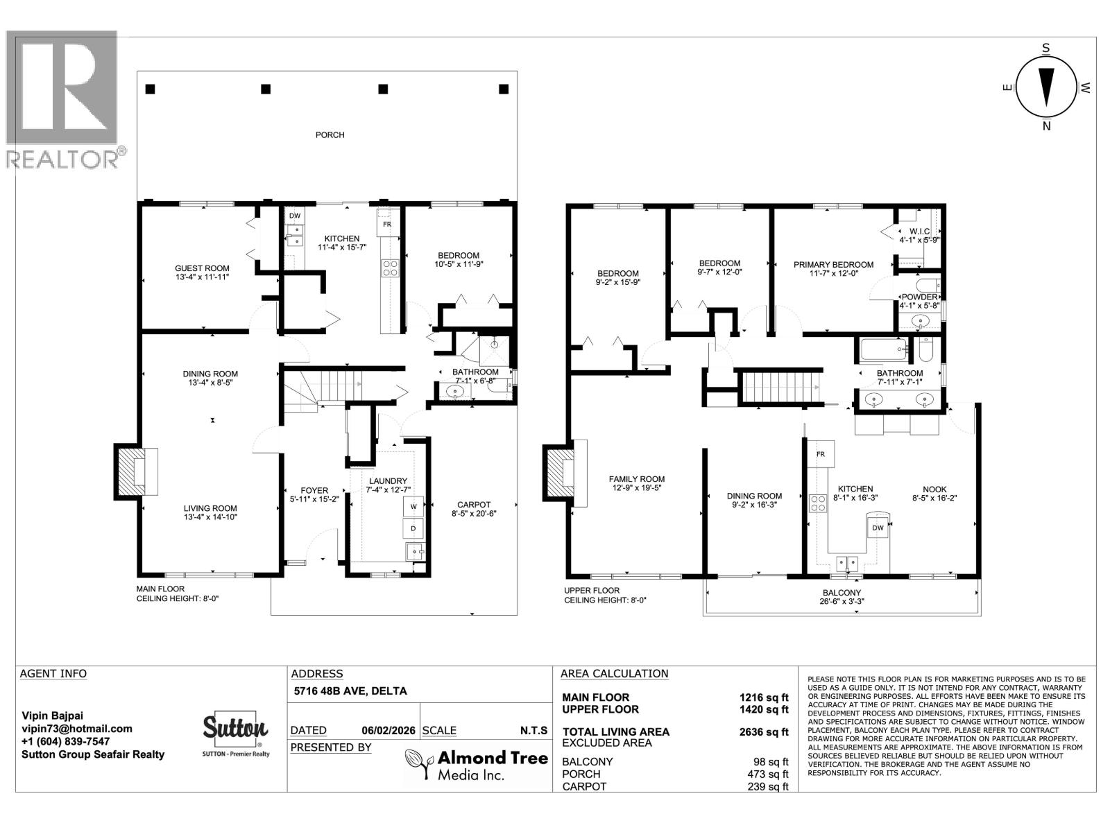
5 Bedroom 3 Bathroom 2,636 sqft
2 Level Fireplace Forced Air

$1,299,000

Opportunity knocks for Investors and end users! This well maintained home features two rentable living spaces with excellent income potential. Upstairs offer 3 bedrooms, 1 1/2 baths while the lower level includes a self contained 2 bedroom suite with 1 full bath. Solid Home with great bones, a 1 year old roof. Centrally located close to schools, transit, shopping and amenities. Fantastic opportunity to update and add value. Call listing agent for viewings and more information. (id:63400)

Property Details

MLS® Number R3087822
Property Type Single Family
Amenities Near By Golf Course, Marina, Recreation, Shopping
Features Central Location
Parking Space Total 4

Building

Bathroom Total 3
Bedrooms Total 5
Amenities Laundry - In Suite, Shared Laundry
Appliances All
Architectural Style 2 Level
Constructed Date 1979
Construction Style Attachment Detached
Fireplace Present Yes
Fireplace Total 2
Heating Fuel Natural Gas
Heating Type Forced Air
Size Interior 2,636 Sqft
Type House

Parking

Carport

Land

Acreage No
Land Amenities Golf Course, Marina, Recreation, Shopping
Size Frontage 50 Ft
Size Irregular 5550
Size Total 5550 Sqft
Size Total Text 5550 Sqft

https://www.realtor.ca/real-estate/29340625/5716-48b-avenue-delta

Vipin Bajpai

(604) 839-7547
www.vipin.ca/

Sutton Group Seafair Realty
#100 - 5000 Bridge Street
Delta, British Columbia V4K 2K4

(604) 946-1255
(604) 946-3036

Your Favourites

 

No Favourites Found